Ir al contenido principal

- CÓMO, CUÁNDO Y PORQUÉ DE LA CASA

 

Imagen  12-Detalle relación interior- exterior

 

Imagen 13-Detalle Ballon Frame modificado

 

Imagen 14-Planta con alas en forma de L

 

La casa estuvo diseñada sobre ciertas condiciones las cuales Schindler tuvo que tener en cuenta limitando o aumentando las posibilidades de la casa. En California el clima es cálido la mayor parte del año pudiendo así hacer vida en el exterior, algo muy relacionado con la filosofía que seguía el arquitecto de unir el exterior con el interior. Esto le permitió darle la importancia a los patios (zonas exteriores, esto solo en presentación) que él deseaba además de las habitaciones nido que hay en la planta superior de la casa la casa.

 

Por otro lado, las condiciones económicas son muy importantes en todas las obras y en esta también lo fueron. La obra fue promocionada por el padre de Paulin Gibling, la mujer del arquitecto. Esto es algo que aparentemente no es de mucha importancia pero nos da que pensar al ver como Schindler piensa en muchos detalles a la hora de construir la casa así pudiendo construirla de forma más fácil y económica pero sin empobrecer la construcción, sino enriqueciéndola con detalles como por ejemplo el balloon frame el cual modificaría a su gusto los muros de hormigón encofrados y girados in situ con unas técnicas muy rudimentarias.

No tenemos que olvidar que a nivel cultural Schindler estuvo muy influenciado por Wright con la cultura japonesa donde se dio cuenta de su verdadero potencial, a pesar de que nunca viajara a Japón, ya que trabajó en el estudio de este durante numerosos años llegando a tener una gran relevancia en muchos de sus proyectos.

 

Todas estas ideas importadas consiguieron abrir un hueco en su arquitectura consiguiendo entrelazarse a la perfección con la forma de pensar de Schindler. Esto lo podemos observar al dejar completamente de lado la ordenación americana típica  que proporcionaba habitaciones con usos/fines especializados y divididas por muros a conseguir que: 

 

''Todas las habitaciones pasen a formar parte de una unidad orgánica en lugar  de ser pequeñas cajas con mirillas''. 2

 

Imagen 15- Planta analizada

 

También trabaja la planta de forma diferente creando tres alas con forma de L desdibujando límites entre el interior y el exterior, teniendo en cuenta que las estancias interiores, estaban separadas mayoritariamente por paneles de tela, para dividir y a la vez relacionar todos los espacios incluso con el exterior donde los paneles ayudan a regular el control de la luz solar. Esta idea junto con la de trabajar el jardín a modo paisajístico trabajando con los niveles de los jardines los cuales pone al mismo nivel que el pavimento de la casa para unificar toda la planta interior y exterior y por la parte más lejana a la casa hunde para que junto al control del follaje limite el acceso exterior y aumente la privacidad en la vivienda. En todo esto vemos una gran relación con la arquitectura japonesa. Además de inspirarse en los techos japoneses pero adaptándose a las necesidades de occidente, es decir, en Japón se modulan de una forma en concreto situando la s vigas a 6(1,82) pies ya que ellos realizan las actividades de la casa, como comer, en el suelo y ni necesitan una gran altura, pero en la situación actual se requería de aumentar la modulación a a 6,8 (203 cm) pies para crear estancias confortables.

 

Imagen 16-Fotografía de Pauline Gibling

 

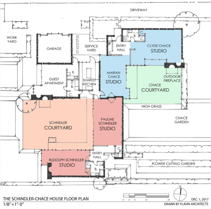
A nivel sociológico tenemos que abrir nuestras mentes ya que esta vivienda no está construida para un único núcleo familiar al uso sino que en cada ala se hospeda una pareja siendo esta condición también resuelta en la planta con sus tres aspas, la tercera es para las zonas comunes.

 

Se concibe en 1921 como un prototipo experimental para ser compartido con su esposa, intelectual y activista Pauline Gibling (1893-1977) y con sus amigos Clyde y Marian Chace. 

Todos los cuartos poseen parecidas dimensiones, un pequeño recibidor con un baño incorporado conecta ambas unidades familiares, separadas entre sí por una cocina situada en el centro de la composición, junto al garaje y el apartamento de huéspedes que completan el programa y formando la tercera ala.

 

2. SCHINDLER, R. M., “Similarities Between R.M. Schindler House and Descriptions of Traditional Japanese Architecture”,(Journal of Asian Architecture and Building Engineering), 1926, pp.43

 

 

 

 

 

 

 

 

 

 

 

 

Crea tu propia página web con Webador